Perforerat don rektangulärt CEA
Comdif CEA är ett rektangulärt, perforerat don för deplacerande ventilation för montering mot vägg eller pelare. Bakom den perforerade frontplattan har CEA individuellt inställbara dysor, som gör att närzonens geometri kan ändras. Donet är vändbart och har cirkulär kanalanslutning (muffmått), och kan anslutas uppifrån eller nedifrån. Donet lämpar sig för inblåsning av stora luftmängder med måttlig undertemperatur.
- Donet lämpar sig för inblåsning av stora luftmängder.
- Närzonens geometri kan justeras med hjälp av ställbara dysor.
- Som tillbehör finns sockel.
Underhåll
Frontplattan kan demonteras från donet, så att dysorna kan rengöras. De synliga delarna av donet kan torkas av med en fuktig trasa.
» Klicka här för att se detaljer
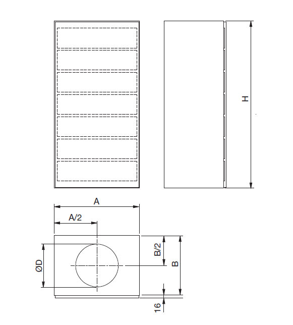
Dimensioner

| Storlek |
A mm |
B mm |
ØD mm |
H mm |
Vikt kg |
| 2010 |
300 |
300 |
200 |
980 |
12,0 |
| 2510 |
500 |
350 |
250 |
980 |
24,0 |
| 3115 |
800 |
500 |
315 |
1500 |
80,0 |
| 4015 |
800 |
600 |
400 |
1500 |
96,0 |