Perforerat don inbyggnad CVA
Comdif CVA är ett rektangulärt, perforerat don för deplacerande ventilation för montering i vägg eller liknande konstruktion. CVA har rektangulär anslutning. Bakom den perforerade frontplattan har CVA individuellt inställbara dysor, som gör att närzonens geometri kan ändras. Donet är vändbart och har rektangulär kanalanslutning, och kan anslutas uppifrån eller nedifrån. Som tillbehör finns väggkanal med cirkulär anslutning. Donet lämpar sig för inblåsning av stora luftmängder med måttlig undertemperatur.
- Donet är lämpligt för inbyggnad i vägg.
- Närzonens geometri kan justeras med hjälp av ställbara dysor.
- Som tillbehör finns väggkanal.
Underhåll
Frontplattan kan demonteras från donet, så att dysorna kan rengöras. De synliga delarna av donet kan torkas av med en fuktig trasa.
» Klicka här för att se beskrivning
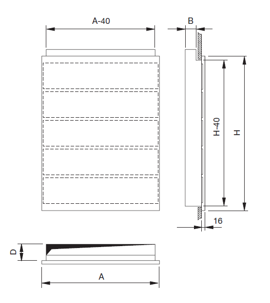
Dimensioner

| Storlek |
A mm |
B mm |
D mm |
H mm |
Vikt kg |
| 3005 |
540 |
50 |
75 |
320 |
4,40 |
| 5005 |
540 |
50 |
75 |
450 |
5,80 |
| 6005 |
540 |
50 |
75 |
580 |
8,70 |
| 6008 |
540 |
80 |
105 |
580 |
9,00 |
| 8008 |
540 |
80 |
105 |
840 |
12,0 |