Väggdon G20 och G20 med VBA
G20 är ett rektangulärt aluminiumgaller med fasta, sned- ställda, horisontella lameller. G20 kan användas för frånluft. G20 levereras som standard med fjäderklämmor för monte- ring i tryckfördelningslåda ty p VBA. På produktfotot visas gallret med VBA-låda.
Underhåll
Gallret demonteras för att ge åtkomst till tryckfördelnings- låda eller kanal. Utvändiga de lar torkas av med en fuktig trasa.
» Klicka här för att se beskrivning
G20

| AxB mm |
Fri area F(m2)
|
Vikt kg |
| 200x100 |
0,0066 |
0,3 |
| 300x100 |
0,0103 |
0,3 |
| 400x100 |
0,0141 |
0,4 |
| 500x100 |
0,0178 |
0,6 |
| 300x150 |
0,0172 |
0,5 |
| 400x150 |
0,0234 |
0,6 |
| 500x150 |
0,0297 |
0,9 |
| 600x150 |
0,0328 |
0,8 |
| 400x200 |
0,0416 |
1,2 |
| 500x200 |
0,0359 |
1,0 |
| 600x200 |
0,0503 |
1,4 |
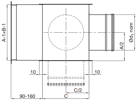
G20 med VBA

| AxB mm |
Ød1 nom
|
C mm |
F mm
|
| 200x100 |
125 |
165 |
90 |
| 300x100 |
160 |
200 |
110 |
| 300x150 |
200 |
240 |
130 |
| 400x100 |
160 |
200 |
110 |
| 400x150 |
250 |
290 |
155 |
| 400x200 |
250 |
290 |
155 |
| 500x100 |
200 |
240 |
130 |
| 500x150 |
250 |
290 |
155 |
| 500x200 |
315 |
355 |
190 |
| 600x150 |
250 |
290 |
155 |
| 600x200 |
315 |
355 |
190 |