Perforerat don CBAL
CBAL är ett lågimpulsdon för takmontering. Donet lämpar sig för inblåsning av ersättningsluft i laboratorier, storkök och liknande. Donet har ställbara dysor bakom den perforerade frontplattan, vilket gör att spridningsmönstret kan anpassas till rådande förhållanden.
Underhåll
Frontplatta och dysor kan lossas från donet, så att dysorna kan rengöras. De synliga delarna av donet kan torkas av med en fuktig trasa.
» Klicka här för att se beskrivning
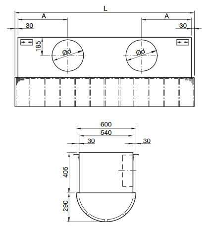
Dimensioner

| Storlek |
A mm |
ØD mm |
Antal anslutningar |
| 1200 |
570 |
315
|
1 |
| 1800 |
500 |
315 |
2 |